Projekt domu Jesionka – Podlaski 110





Jesionka – Podlaski 110 to projekt, który zachowuje pełnię podlaskiej tradycji, a jednocześnie odpowiada współczesnym standardom wygody, energooszczędności i funkcjonalności. Charakterystyczne detale snycerskie, ozdobne zdobienia wokół okien oraz misternie wykończony ganek przywołują klimat dawnych wiejskich domów, w których rzemiosło miało ogromne znaczenie i opowiadało historię regionu.Wnętrze Jesionki jest praktyczne i świetnie zorganizowane.
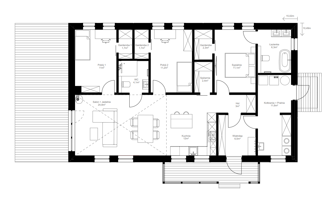
Strefa dzienna obejmuje jasny salon z jadalnią oraz przestronną kuchnię z wygodną spiżarnią. Duże przeszklenia otwierają dom na ogród, wpuszczając naturalne światło i budując poczucie kontaktu z naturą.Część prywatna została rozplanowana tak, by zapewnić domownikom swobodę i prywatność. Dwa pokoje posiadają osobne garderoby, co znacząco poprawia funkcjonalność przestrzeni. Główna sypialnia znajduje się blisko komfortowej łazienki, wyposażonej w wannę i podwójną umywalkę. Osobne WC ułatwia codzienne użytkowanie. Duża kotłownia z pralnią została zaplanowana tak, by wygodnie organizować obowiązki domowe, bez zajmowania miejsca w części mieszkalnej.Jesionka 110 to dom o łagodnej, jasnej estetyce, idealnie wpisujący się w zielone krajobrazy Podlasia. To wybór dla osób, które cenią spokojne życie, harmonię z naturą, tradycję splecioną z nowoczesnością oraz przemyślane wnętrza dopasowane do realnych potrzeb.
minimalny wymiar działki | 15,02 x 10,49 m | |
wysokość | 2,82 m | |
powierzchnia podlogi | 105,7 m2 |
powierzchnia zabudowy | 145,3 m2 | |
kąt nachylenia dachu | 37° |
Zakres prac
Płyta fundamentowa to kompletny, przygotowany „start” pod montaż budynku stabilny, równy i dobrze zaizolowany. W ramach prac wykonujemy wykop oraz jeśli warunki gruntowe tego wymagają wymianę gruntu w celu uzyskania odpowiedniej nośności i ograniczenia osiadań.
Następnie wykonujemy rozprowadzenie kanalizacji pod płytąwraz z podejściami, przepustami i wyprowadzeniami zgodnie z projektem.
Przygotowujemy również przejście (wejście) wody do budynku oraz przepust/wyprowadzenie pod zasilanie elektryczne, tak aby instalacje były gotowe bez kucia i przeróbek na późniejszym etapie. Pod płytą układamy izolację termiczną z XPS o grubości 10 cm, która ogranicza straty ciepła do gruntu i poprawia parametry energetyczne strefy posadowienia. Na końcu wykonujemy równą płytę fundamentową o kontrolowanej geometrii (rzędne, poziomy), przygotowaną pod precyzyjny montaż prefabrykowanego budynku. Dzięki temu montaż przebiega sprawnie, a cała konstrukcja pracuje stabilnie od pierwszego dnia.
Standard podstawowy obejmuje wykonanie prefabrykowanej konstrukcji drewnianej szkieletowej oraz jej montaż na budowie. Przegrody zewnętrzne wykonywane są w technologii prefabrykacji z ciągłą, sklejoną warstwą paroizolacyjną, zapewniającą wysoką szczelność powietrzną budynku. Standard umożliwia przeprowadzenie próby szczelności (blower door) z wynikiem n50 < 1,0 1/h, typowym dla budynków o podwyższonych wymaganiach energetycznych (w tym pasywnych). W zakresie standardu przewidziano:
- Elewację zewnętrzną wykonaną na gotowo.
- Montaż stolarki okiennej i drzwi zewnętrznych w standardzie „ciepłego montażu”: mocowanie na prenitach/łącznikach montażowych, uszczelnienie warstwowe taśmami — od strony wewnętrznej połączenie z warstwą paro-/powietrznoszczelną, od strony zewnętrznej zabezpieczenie w strefie złącza zgodnie z zasadą „szczelniej wewnątrz niż na zewnątrz”.
- Konstrukcję dachu na dźwigarach, ocieplenie połaci dachu zasypem z celulozy 30 cm oraz wykonanie pokrycia dachu.
- Ściany wewnętrzne wykonane jako otwarte z jednej strony, przygotowane do prowadzenia i montażu instalacji.
- Ściany zewnętrzne zakończone przedścianką instalacyjną, umożliwiającą prowadzenie instalacji bez naruszania warstwy szczelnej (paroizolacji).
Wykończenie pod klucz to kompletny etap wykończeniowy, w którym dom zostaje doprowadzony do stanu gotowego do zamieszkania z wykonanymi okładzinami, łazienkami, podłogami, drzwiami wewnętrznymi, malowaniem i pełnym montażem osprzętu oraz wyposażenia zgodnie z ustalonym standardem. To rozwiązanie dla osób, które chcą odebrać dom w pełni wykończony, bez koordynowania ekip i pilnowania dziesiątek decyzji po drodze.
Aby przyjąć zlecenie „pod klucz” i rzetelnie je wycenić, inwestor musi posiadać projekt wnętrza (zakres materiałów, układ funkcjonalny, punkty instalacyjne, zestawienia i standard wykończenia). Na jego podstawie przygotowujemy dokładny kosztorys oraz harmonogram prac, tak aby końcowy efekt był zgodny z założeniami estetycznymi i budżetem.
Jesionka – Podlaski 110
Jesionka – Podlaski 110
FAQ
Tak, wszystkie oferowane przez nas domy (zarówno modułowe, jak i szkieletowe) są budynkami całorocznymi. Dzięki doskonałej izolacji termicznej i nowoczesnej technologii prefabrykowanej, domy te zapewniają optymalny mikroklimat i komfort cieplny o każdej porze roku, będąc jednocześnie tanimi w utrzymaniu.
Tak, nasza oferta obejmuje kompleksowe wsparcie inwestora. Oprócz samej budowy, pomagamy w dopełnieniu niezbędnych formalności administracyjnych. Naszym celem jest maksymalne odciążenie klienta, tak aby jego rola mogła ograniczyć się do akceptacji projektu, podpisania umowy i odebrania kluczy do gotowego domu.
Dzięki wykorzystaniu technologii prefabrykacji, proces budowy jest znacznie krótszy niż w przypadku metod tradycyjnych. Sam montaż konstrukcji na placu budowy trwa zazwyczaj od 2 do 4 dni. Łączny czas realizacji inwestycji – od momentu rozpoczęcia prac do stanu gotowego do odbioru – wynosi średnio około 3 miesięcy, zależnie od wielkości i stopnia skomplikowania projektu.
Zobacz podobne Domy podlaskie
BUDOWA DOMÓW MODUŁOWYCH W 3 MIESIĄCE
Dzięki właściwej organizacji pracy możemy połączyć w jednym czasie: prefabrykacje elementów w fabryce z robotami ziemnymi i posadowieniem fundamentów na placu budowy. Średni czas montażu na placu budowy to 2-4 dni. Krótki czas budowy i przewidywalny koszt inwestycji to oszczędność czasu i pieniędzy
Dom to coś więcej niż projekt i materiały – to przestrzeń, w której codzienność staje się spokojniejsza, a życie po prostu dobrze się układa. W tej galerii pokazujemy gotowe domy prefabrykowane, które powstały z drewna w technologii lekkiego szkieletu – energooszczędne, funkcjonalne i dopasowane do różnych potrzeb. Każdy z nich ma swój charakter, ale łączy je podejście oparte na prostocie, wygodzie i harmonii z otoczeniem. Inspirujemy się stylem skandynawskim, który stawia na jasne wnętrza, naturalne materiały i rozsądne rozwiązania. Budujemy z myślą o tym, by dom dobrze służył na co dzień – niezależnie od tego, czy ma 50 czy 150 metrów. Jeśli szukasz pomysłu na swój przyszły dom, być może właśnie tutaj znajdziesz coś, co będzie dobrym początkiem.







