Projekt domu Projekt domu małego




Przedstawiamy projekt domu z użytkowym poddaszem o niezwykle prostej formie – groszek 2. Jest to doskonałe rozwiązanie dla 2-4 osobowej rodziny, szukającej inspiracji do zrealizowania swoich planów. Polecany osobom marzącym o własnym kącie z niewielką bryłą budynku, która będzie funkcjonalna, komfortowa i wygodna. Projekt domu małego, który nie przekracza 100 m kw łączy w sobie tradycyjną formę połączoną z współczesnymi elementami architektonicznymi. Kompozycja elewacji lekko mokrej z tynkiem silikonowym z elewacją drewnianą dodaje czterem ścianom klasycznej elegancji, dzięki dobrze dobranym materiałom o zróżnicowanych kolorach i fakturze. Rozwiązanie to jest unikalne i sprawi, że tak wykończony dom będzie wyróżniał się z całą pewnością na tle innych budynków.
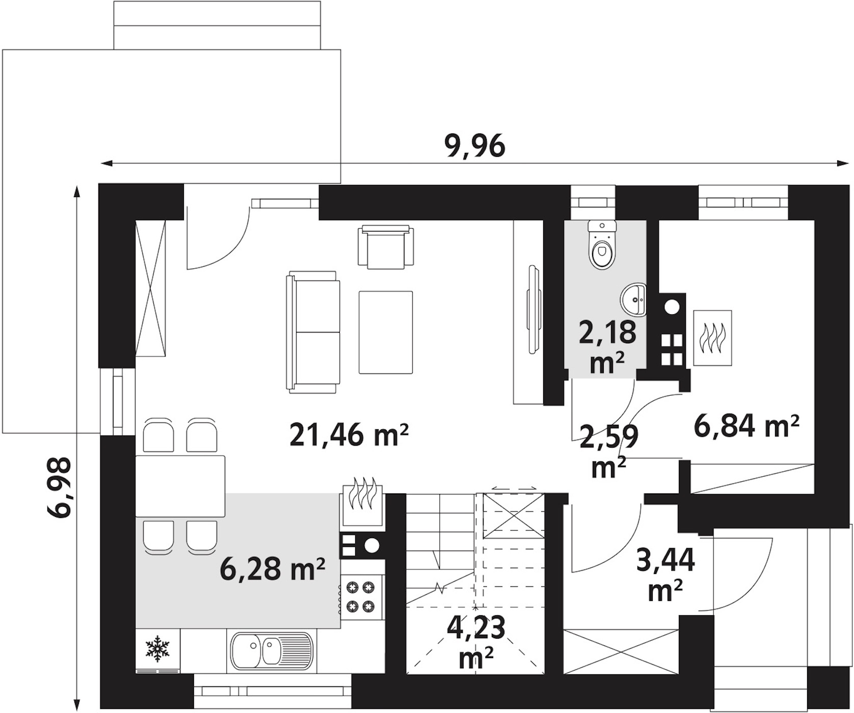
Na dwóch kondygnacjach została zaprojektowana przestrzeń podzielona na dwie strefy: nocną i dzienną, aby zapewnić rodzinie poczucie prywatności i wygody. Przestronny salon połączony z kuchnią to idealne miejsce do rodzinnych spotkań i rozmów, a także wspólnych posiłków. Wypoczynek w tym miejscu zapewni otwarta przestrzeń, a także uwzględniony w projekcie kominek, który uprzyjemni niejeden zimowy wieczór, czyniąc ten niewielki dom niezwykle przytulnym. Dobre oświetlenie zapewni rozmieszczenie okien, dzięki którym do mieszkania będzie docierało mnóstwo promieni słonecznych. Dużym plusem jest bezpośrednie wyjście z salonu wprost na taras, aby w ciepłe dni móc wypoczywać na świeżym powietrzu.
minimalny wymiar działki | 17,96 × 15,98 m | |
wysokość | 8,00 m | |
powierzchnia podlogi | 80,63 m2 |
powierzchnia zabudowy | 69,32 m2 | |
kąt nachylenia dachu | 45° |
Zakres prac
Płyta fundamentowa to kompletny, przygotowany „start” pod montaż budynku stabilny, równy i dobrze zaizolowany. W ramach prac wykonujemy wykop oraz jeśli warunki gruntowe tego wymagają wymianę gruntu w celu uzyskania odpowiedniej nośności i ograniczenia osiadań.
Następnie wykonujemy rozprowadzenie kanalizacji pod płytąwraz z podejściami, przepustami i wyprowadzeniami zgodnie z projektem.
Przygotowujemy również przejście (wejście) wody do budynku oraz przepust/wyprowadzenie pod zasilanie elektryczne, tak aby instalacje były gotowe bez kucia i przeróbek na późniejszym etapie. Pod płytą układamy izolację termiczną z XPS o grubości 10 cm, która ogranicza straty ciepła do gruntu i poprawia parametry energetyczne strefy posadowienia. Na końcu wykonujemy równą płytę fundamentową o kontrolowanej geometrii (rzędne, poziomy), przygotowaną pod precyzyjny montaż prefabrykowanego budynku. Dzięki temu montaż przebiega sprawnie, a cała konstrukcja pracuje stabilnie od pierwszego dnia.
Wykończenie do stanu deweloperskiego to etap, w którym dom zyskuje pełną funkcjonalność i jest przygotowany pod finalne prace wykończeniowe. W ramach prac wykonujemy komplet niezbędnych instalacji: elektryczną, wodno-kanalizacyjną, ogrzewanie (zgodnie z projektem i uzgodnionym standardem) oraz wentylację mechaniczną z rekuperacją.
Rekuperacja zapewnia stałą, kontrolowaną wymianę powietrza i odzysk ciepła, co przekłada się na mniejsze straty energii, lepszą jakość powietrza, mniejszą wilgoć i wyższy komfort na co dzień. Dodatkowo wykonujemy komin spalinowy do kominka wraz z doprowadzeniem powietrza do spalania, przygotowany pod montaż wkładu kominkowego.
Następnie wypełniamy ściany działowe izolacją (akustyczną/termiczną zależnie od przegrody), po czym wykonujemy zamknięcie ścian płytami GK wraz z przygotowaniem powierzchni pod dalsze wykończenie. Całość domykają posadzki, wykonane równo i w poziomie, gotowe pod ułożenie warstw finalnych. Efektem jest dom w standardzie deweloperskim: z rozprowadzonymi mediami, wykonaną wentylacją z rekuperacją, przygotowanym kominem pod kominek oraz gotowymi przegrodami i posadzkami.
Standard podstawowy obejmuje wykonanie prefabrykowanej konstrukcji drewnianej szkieletowej oraz jej montaż na budowie. Przegrody zewnętrzne wykonywane są w technologii prefabrykacji z ciągłą, sklejoną warstwą paroizolacyjną, zapewniającą wysoką szczelność powietrzną budynku. Standard umożliwia przeprowadzenie próby szczelności (blower door) z wynikiem n50 < 1,0 1/h, typowym dla budynków o podwyższonych wymaganiach energetycznych (w tym pasywnych). W zakresie standardu przewidziano:
- Elewację zewnętrzną wykonaną na gotowo.
- Montaż stolarki okiennej i drzwi zewnętrznych w standardzie „ciepłego montażu”: mocowanie na prenitach/łącznikach montażowych, uszczelnienie warstwowe taśmami — od strony wewnętrznej połączenie z warstwą paro-/powietrznoszczelną, od strony zewnętrznej zabezpieczenie w strefie złącza zgodnie z zasadą „szczelniej wewnątrz niż na zewnątrz”.
- Konstrukcję dachu na dźwigarach, ocieplenie połaci dachu zasypem z celulozy 30 cm oraz wykonanie pokrycia dachu.
- Ściany wewnętrzne wykonane jako otwarte z jednej strony, przygotowane do prowadzenia i montażu instalacji.
- Ściany zewnętrzne zakończone przedścianką instalacyjną, umożliwiającą prowadzenie instalacji bez naruszania warstwy szczelnej (paroizolacji).
Wykończenie pod klucz to kompletny etap wykończeniowy, w którym dom zostaje doprowadzony do stanu gotowego do zamieszkania z wykonanymi okładzinami, łazienkami, podłogami, drzwiami wewnętrznymi, malowaniem i pełnym montażem osprzętu oraz wyposażenia zgodnie z ustalonym standardem. To rozwiązanie dla osób, które chcą odebrać dom w pełni wykończony, bez koordynowania ekip i pilnowania dziesiątek decyzji po drodze.
Aby przyjąć zlecenie „pod klucz” i rzetelnie je wycenić, inwestor musi posiadać projekt wnętrza (zakres materiałów, układ funkcjonalny, punkty instalacyjne, zestawienia i standard wykończenia). Na jego podstawie przygotowujemy dokładny kosztorys oraz harmonogram prac, tak aby końcowy efekt był zgodny z założeniami estetycznymi i budżetem.
Instalacja fotowoltaiczna (PV) to system, który produkuje energię elektryczną z promieniowania słonecznego i realnie obniża koszty eksploatacji domu — szczególnie przy pompie ciepła, rekuperacji i ogrzewaniu elektrycznym. W ramach zakresu dobieramy moc instalacji do profilu zużycia, projektu budynku oraz możliwości przyłączeniowych, a następnie wykonujemy kompletny montaż i uruchomienie. Typowy zakres obejmuje:
- dobór i montaż modułów PV na dachu (lub konstrukcji naziemnej – jeśli przewidziana),
- montaż falownika (on-grid) oraz zabezpieczeń DC/AC,
- wykonanie okablowania, przepustów i podłączenia do rozdzielnicy,
- konfigurację monitoringu produkcji energii i uruchomienie instalacji,
- przygotowanie dokumentacji powykonawczej oraz wsparcie w zgłoszeniu do operatora (jeśli jest w zakresie).
Warianty (opcjonalnie):
- magazyn energii (zwiększa autokonsumpcję i niezależność),
- instalacja pod przyszłą rozbudowę (np. PV + ładowarka EV),
- optymalizatory/mikroinwertery (np. przy zacienieniach lub złożonej połaci).
Efektem jest instalacja gotowa do pracy, z pomiarem i monitoringiem, zaprojektowana tak, aby maksymalnie wykorzystać potencjał dachu i zużycie energii w domu.
Projekt domu małego
Projekt domu małego
FAQ
Tak, wszystkie oferowane przez nas domy (zarówno modułowe, jak i szkieletowe) są budynkami całorocznymi. Dzięki doskonałej izolacji termicznej i nowoczesnej technologii prefabrykowanej, domy te zapewniają optymalny mikroklimat i komfort cieplny o każdej porze roku, będąc jednocześnie tanimi w utrzymaniu.
Tak, nasza oferta obejmuje kompleksowe wsparcie inwestora. Oprócz samej budowy, pomagamy w dopełnieniu niezbędnych formalności administracyjnych. Naszym celem jest maksymalne odciążenie klienta, tak aby jego rola mogła ograniczyć się do akceptacji projektu, podpisania umowy i odebrania kluczy do gotowego domu.
ndj
Dzięki wykorzystaniu technologii prefabrykacji, proces budowy jest znacznie krótszy niż w przypadku metod tradycyjnych. Sam montaż konstrukcji na placu budowy trwa zazwyczaj od 2 do 4 dni. Łączny czas realizacji inwestycji – od momentu rozpoczęcia prac do stanu gotowego do odbioru – wynosi średnio około 3 miesięcy, zależnie od wielkości i stopnia skomplikowania projektu.
Zobacz podobne Domy tradycyjne
BUDOWA DOMÓW MODUŁOWYCH W 3 MIESIĄCE
Dzięki właściwej organizacji pracy możemy połączyć w jednym czasie: prefabrykacje elementów w fabryce z robotami ziemnymi i posadowieniem fundamentów na placu budowy. Średni czas montażu na placu budowy to 2-4 dni. Krótki czas budowy i przewidywalny koszt inwestycji to oszczędność czasu i pieniędzy
Dom to coś więcej niż projekt i materiały – to przestrzeń, w której codzienność staje się spokojniejsza, a życie po prostu dobrze się układa. W tej galerii pokazujemy gotowe domy prefabrykowane, które powstały z drewna w technologii lekkiego szkieletu – energooszczędne, funkcjonalne i dopasowane do różnych potrzeb. Każdy z nich ma swój charakter, ale łączy je podejście oparte na prostocie, wygodzie i harmonii z otoczeniem. Inspirujemy się stylem skandynawskim, który stawia na jasne wnętrza, naturalne materiały i rozsądne rozwiązania. Budujemy z myślą o tym, by dom dobrze służył na co dzień – niezależnie od tego, czy ma 50 czy 150 metrów. Jeśli szukasz pomysłu na swój przyszły dom, być może właśnie tutaj znajdziesz coś, co będzie dobrym początkiem.








