Projekt domu Skandynawski 156.1




Skandynawski 156.1 to alternatywna wersja dla domu Skandynawski 156.2. Dzięki zastosowaniu wnęki zamiast ganku bryła nabiera wyglądu nowoczesnej stodoły.
Skandynawski 156.1 to alternatywna wersja dla domu Skandynawski 156.2. Dzięki zastosowaniu wnęki zamiast ganku bryła nabiera wyglądu nowoczesnej stodoły.
minimalny wymiar działki | ||
wysokość | ||
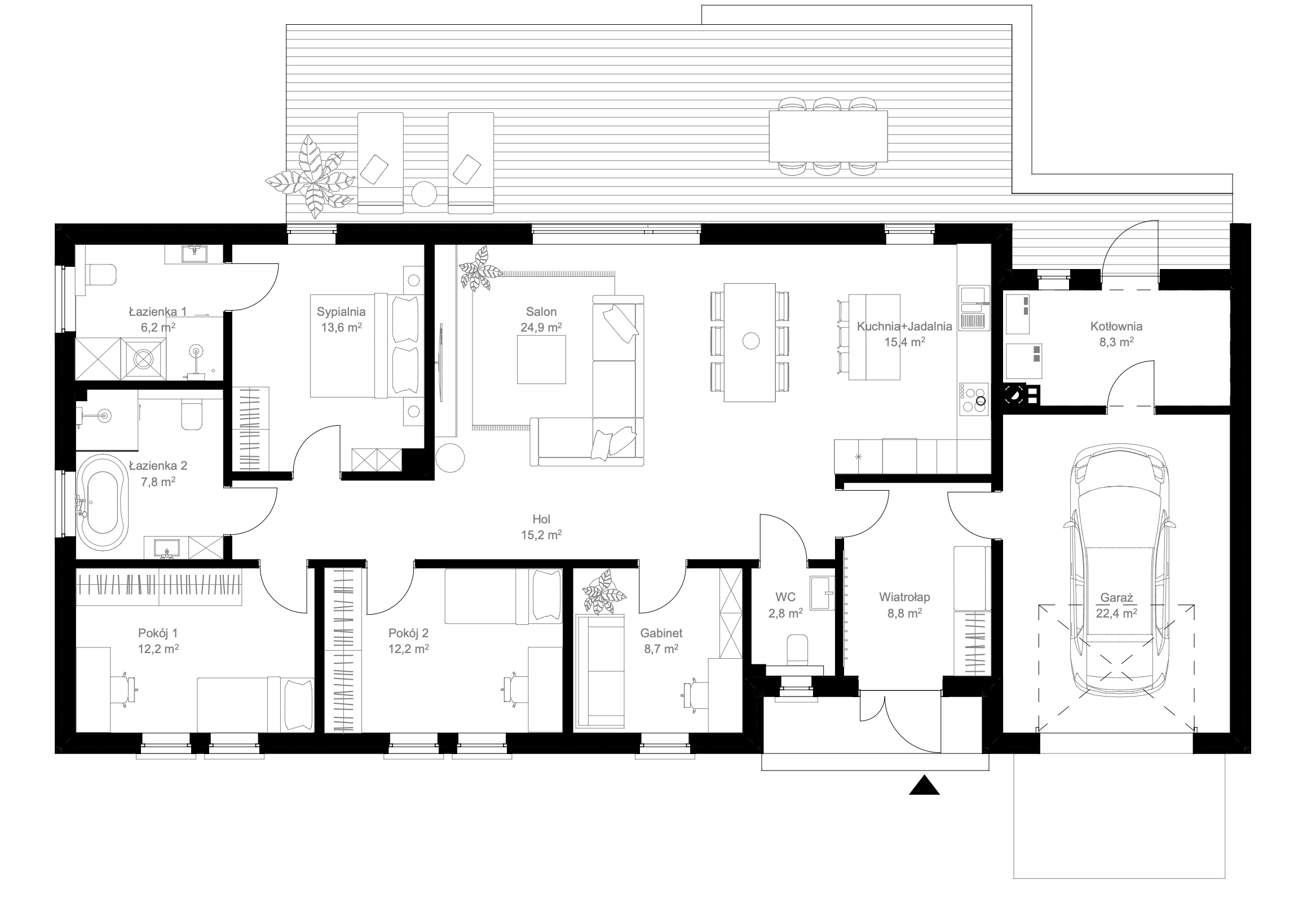
powierzchnia podlogi | 158,5 m2 |
powierzchnia zabudowy | 156 m2 | |
kąt nachylenia dachu |
Zakres prac
Wykończenie pod klucz to kompletny etap wykończeniowy, w którym dom zostaje doprowadzony do stanu gotowego do zamieszkania z wykonanymi okładzinami, łazienkami, podłogami, drzwiami wewnętrznymi, malowaniem i pełnym montażem osprzętu oraz wyposażenia zgodnie z ustalonym standardem. To rozwiązanie dla osób, które chcą odebrać dom w pełni wykończony, bez koordynowania ekip i pilnowania dziesiątek decyzji po drodze.
Aby przyjąć zlecenie „pod klucz” i rzetelnie je wycenić, inwestor musi posiadać projekt wnętrza (zakres materiałów, układ funkcjonalny, punkty instalacyjne, zestawienia i standard wykończenia). Na jego podstawie przygotowujemy dokładny kosztorys oraz harmonogram prac, tak aby końcowy efekt był zgodny z założeniami estetycznymi i budżetem.
Kotłownia i źródło ciepła to kompletne przygotowanie oraz wykonanie instalacji grzewczej wraz z doborem i montażem urządzeń – zgodnie z projektem, zapotrzebowaniem budynku i preferencjami inwestora. W zależności od standardu i dostępnych mediów możemy zrealizować różne warianty źródła ciepła oraz konfiguracje kotłowni. Możliwe warianty źródła ciepła / kotłowni:
- Pompa ciepła powietrze–woda (najczęściej wybierana) – z buforem i/lub zasobnikiem CWU.
- Pompa ciepła gruntowa – wyższa stabilność pracy, wymaga dolnego źródła (odwierty/kolektor).
- Kocioł gazowy kondensacyjny (jeśli jest przyłącze gazu) – z zasobnikiem CWU.
- Kocioł na pellet / biomasę – z zasobnikiem paliwa i odpowiednim odprowadzeniem spalin.
- Ogrzewanie elektryczne (np. kable/maty lub piec elektryczny do CO/CWU) – proste instalacyjnie, zależne od taryf i cen energii.
- Kominek jako źródło dodatkowe (rekreacyjne/awaryjne) – z doprowadzeniem powietrza, opcjonalnie z dystrybucją ciepła lub płaszczem wodnym (jeśli projekt przewiduje).
- Hybryda (np. pompa ciepła + grzałka, pompa ciepła + PV, gaz + pompa) – dopasowana do budżetu i warunków.
Typowe elementy w zakresie kotłowni (w zależności od wariantu):
- uruchomienie i podstawowa regulacja instalacji.
- montaż urządzenia grzewczego i osprzętu (armatura, zabezpieczenia, pompy obiegowe),
- zasobnik CWU / bufor (jeśli wymagane),
- rozdzielacze i automatyka sterująca,
Płyta fundamentowa to kompletny, przygotowany „start” pod montaż budynku stabilny, równy i dobrze zaizolowany. W ramach prac wykonujemy wykop oraz jeśli warunki gruntowe tego wymagają wymianę gruntu w celu uzyskania odpowiedniej nośności i ograniczenia osiadań.
Następnie wykonujemy rozprowadzenie kanalizacji pod płytąwraz z podejściami, przepustami i wyprowadzeniami zgodnie z projektem.
Przygotowujemy również przejście (wejście) wody do budynku oraz przepust/wyprowadzenie pod zasilanie elektryczne, tak aby instalacje były gotowe bez kucia i przeróbek na późniejszym etapie. Pod płytą układamy izolację termiczną z XPS o grubości 10 cm, która ogranicza straty ciepła do gruntu i poprawia parametry energetyczne strefy posadowienia. Na końcu wykonujemy równą płytę fundamentową o kontrolowanej geometrii (rzędne, poziomy), przygotowaną pod precyzyjny montaż prefabrykowanego budynku. Dzięki temu montaż przebiega sprawnie, a cała konstrukcja pracuje stabilnie od pierwszego dnia.
Standard podstawowy obejmuje wykonanie prefabrykowanej konstrukcji drewnianej szkieletowej oraz jej montaż na budowie. Przegrody zewnętrzne wykonywane są w technologii prefabrykacji z ciągłą, sklejoną warstwą paroizolacyjną, zapewniającą wysoką szczelność powietrzną budynku. Standard umożliwia przeprowadzenie próby szczelności (blower door) z wynikiem n50 < 1,0 1/h, typowym dla budynków o podwyższonych wymaganiach energetycznych (w tym pasywnych). W zakresie standardu przewidziano:
- Elewację zewnętrzną wykonaną na gotowo.
- Montaż stolarki okiennej i drzwi zewnętrznych w standardzie „ciepłego montażu”: mocowanie na prenitach/łącznikach montażowych, uszczelnienie warstwowe taśmami — od strony wewnętrznej połączenie z warstwą paro-/powietrznoszczelną, od strony zewnętrznej zabezpieczenie w strefie złącza zgodnie z zasadą „szczelniej wewnątrz niż na zewnątrz”.
- Konstrukcję dachu na dźwigarach, ocieplenie połaci dachu zasypem z celulozy 30 cm oraz wykonanie pokrycia dachu.
- Ściany wewnętrzne wykonane jako otwarte z jednej strony, przygotowane do prowadzenia i montażu instalacji.
- Ściany zewnętrzne zakończone przedścianką instalacyjną, umożliwiającą prowadzenie instalacji bez naruszania warstwy szczelnej (paroizolacji).
Skandynawski 156.1
Skandynawski 156.1
Realizacje
Każdy dom to inna historia, ale wspólna idea – prostota, funkcjonalność i energooszczędność.
FAQ
Dzięki wykorzystaniu technologii prefabrykacji, proces budowy jest znacznie krótszy niż w przypadku metod tradycyjnych. Sam montaż konstrukcji na placu budowy trwa zazwyczaj od 2 do 4 dni. Łączny czas realizacji inwestycji – od momentu rozpoczęcia prac do stanu gotowego do odbioru – wynosi średnio około 3 miesięcy, zależnie od wielkości i stopnia skomplikowania projektu.
Tak, wszystkie oferowane przez nas domy (zarówno modułowe, jak i szkieletowe) są budynkami całorocznymi. Dzięki doskonałej izolacji termicznej i nowoczesnej technologii prefabrykowanej, domy te zapewniają optymalny mikroklimat i komfort cieplny o każdej porze roku, będąc jednocześnie tanimi w utrzymaniu.
Tak, nasza oferta obejmuje kompleksowe wsparcie inwestora. Oprócz samej budowy, pomagamy w dopełnieniu niezbędnych formalności administracyjnych. Naszym celem jest maksymalne odciążenie klienta, tak aby jego rola mogła ograniczyć się do akceptacji projektu, podpisania umowy i odebrania kluczy do gotowego domu.
Stawiamy na najwyższą jakość i trwałość, dlatego do produkcji wykorzystujemy drewno lite oraz certyfikowane drewno KVH klasy C24 sprowadzane ze Skandynawii. Stosujemy rozwiązania wiodących producentów, co pozwala nam tworzyć domy energooszczędne, które spełniają, a nawet przewyższają aktualne normy dotyczące ochrony środowiska i emisji CO2.
Zobacz podobne Domy skandynawskie
BUDOWA DOMÓW MODUŁOWYCH W 3 MIESIĄCE
Dzięki właściwej organizacji pracy możemy połączyć w jednym czasie: prefabrykacje elementów w fabryce z robotami ziemnymi i posadowieniem fundamentów na placu budowy. Średni czas montażu na placu budowy to 2-4 dni. Krótki czas budowy i przewidywalny koszt inwestycji to oszczędność czasu i pieniędzy
Dom to coś więcej niż projekt i materiały – to przestrzeń, w której codzienność staje się spokojniejsza, a życie po prostu dobrze się układa. W tej galerii pokazujemy gotowe domy prefabrykowane, które powstały z drewna w technologii lekkiego szkieletu – energooszczędne, funkcjonalne i dopasowane do różnych potrzeb. Każdy z nich ma swój charakter, ale łączy je podejście oparte na prostocie, wygodzie i harmonii z otoczeniem. Inspirujemy się stylem skandynawskim, który stawia na jasne wnętrza, naturalne materiały i rozsądne rozwiązania. Budujemy z myślą o tym, by dom dobrze służył na co dzień – niezależnie od tego, czy ma 50 czy 150 metrów. Jeśli szukasz pomysłu na swój przyszły dom, być może właśnie tutaj znajdziesz coś, co będzie dobrym początkiem.









